8階は現在募集がありません
1フロア募集区画あり

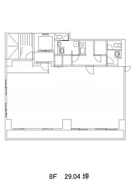
一口坂TSビル 8階

前の写真 次の写真

物件概要

物件番号

386-00052-70

物件名

一口坂TSビル

所在地

面積

29.04坪

賃料(共益費含)


入居日

募集終了

保証金

礼金

更新料

償却費

竣工

1988年9月

構造

RC

規模

地上8階/地下1階

トイレ

男女別

空調

個別空調

エレベーター

セキュリティ

駐車場

耐震

新耐震基準

基準階天井高

2440mm

空室延床面積

47.42坪

最寄駅

情報更新日

2026/03/03

一口坂TSビルのテナント募集中区画

階数 面積 賃料(共益費含む) 保証金 入居可能日 検討リスト 詳細
2 47.42坪 860,673円/月(18,150円/坪) 469万円
…新着物件

一口坂TSビルのアクセス

一口坂TSビルの物件情報

一口坂TSビル(千代田区九段北)は市ヶ谷駅(A4番出口)から徒歩6分の賃貸オフィスです。
靖国通りから少し入ったところに位置し、学校や神社が近くにあります。築年は1988年ですが新耐震基準をクリアしています。外観は御影石風のブロック素材を使用した、重厚感のあるデザインです。室内の一部に柱がありますがほぼ正方形の間取りで床はフリーアクセスのため、レイアウトはしやすいでしょう。室外には男女別トイレ、給湯室があり、機械警備も備えているため快適、安心に過ごすことが出来ます。
一口坂TSビルは市ヶ谷駅(A4番出口)の他に飯田橋駅(西口)徒歩11分、九段下駅(1番出口)徒歩14分で利用も可能です。

近隣のエリア・駅から探す