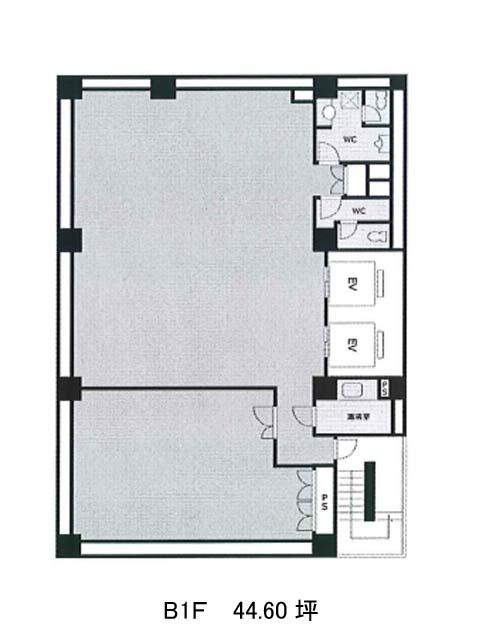
地下1階は現在募集がありません
VORT九段下brooks 地下1階
物件概要
VORT九段下brooksのテナント募集中区画
現在、空室がございません。
VORT九段下brooksのアクセス
VORT九段下brooksの物件情報
VORT九段下brooks(千代田区九段北)は九段下駅(7番出口)から徒歩2分の賃貸オフィスです。物件は目白通りに面した角地に建っています。個性的な形とガラス張りの美しい外観が視認性を高めています。小路を挟んだ隣のビル1階にはSUBWAYの店舗があり、緑の看板が目印にぴったりです。ビルのはす向かいに九段下駅7番出入り口が見える距離感もポイント。勤務される方にも喜ばれることでしょう。周辺にはコンビニや飲食店、カフェが程よく立地。騒がしすぎずることもなく、利便性との絶妙なバランスを保っています。
基準のお部屋は約58坪で、給湯室と男女別トイレはそれぞれきちんと個室になっているため、気兼ねなく利用が出来そうです。エレベーターは2基完備。OAフロアと機械警備付で充実の設備環境です。VORT九段下brooksは九段下駅(7番出口)の他に神保町駅(A2番出口)徒歩6分、飯田橋駅(A5番出口)徒歩9分で利用も可能です。

