6階は現在募集がありません
1フロア募集区画あり

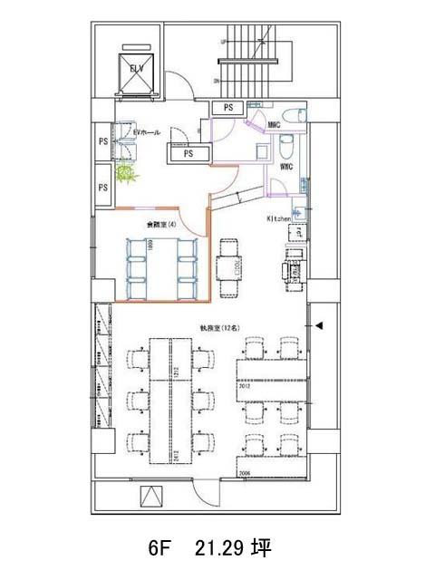
神保町フロント 6階

前の写真 次の写真

物件概要

物件番号

402-00337-33

物件名

神保町フロント

所在地

面積

21.29坪

賃料(共益費含)


入居日

募集終了

保証金

礼金

更新料

償却費

竣工

1989年6月

構造

RC

規模

地上7階/地下1階

トイレ

男女別

空調

個別空調

エレベーター

セキュリティ

駐車場

耐震

新耐震基準

基準階天井高

空室延床面積

26.68坪

最寄駅

情報更新日

2026/02/18

神保町フロントのテナント募集中区画

階数 面積 賃料(共益費含む) 保証金 入居可能日 検討リスト 詳細
4 26.68坪 616,308円/月(23,100円/坪) 336万円 2026年5月上旬
…新着物件

神保町フロントのアクセス

神保町フロントの物件情報

神保町フロント(千代田区神田神保町)は神保町駅(A2番出口)から徒歩4分の賃貸オフィスです。
神保町フロントは神保町駅(A2番出口)の他に水道橋駅(東口)徒歩8分、九段下駅(5番出口)徒歩8分で利用も可能です。

近隣のエリア・駅から探す