第2富士ビル 4階 401-402
物件概要
第2富士ビルのテナント募集中区画
| 階数 | 面積 | 賃料(共益費含む) | 保証金 | 入居可能日 | 検討リスト | 詳細 |
|---|---|---|---|---|---|---|
| 2 | 58.02坪 | 832,260円/月(14,346円/坪) | 558万円 | 相談 | ||
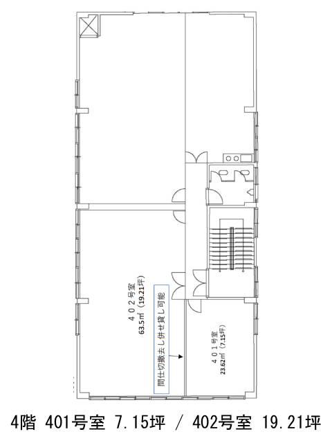
| 4 | 26.36坪 | 応相談(応相談) | 応相談 | 相談 |
…新着物件
アクセス
第2富士ビルの物件情報
第2富士ビル(千代田区神田神保町)は神保町駅(A2番出口)から徒歩3分の賃貸オフィスです。地上4階建て、複数の路線が利用しやすいアクセス抜群のオフィスビル物件です。神保町駅の北側、白山通りから少し入った場所に立地しています。外観はベージュのタイル調で、趣のある佇まいです。上階へは内階段を使って移動します。貸室は無柱空間で、室内にお手洗いと給湯設備が設置されています。2面に窓が設置されているため、換気がしやすい環境です。また、個別空調が備えられています。周辺には複数の銀行支店や郵便局がありますので、事務作業等が捗りそうです。飲食店が充実する通りも近いため、ランチタイムにも困らないでしょう。第2富士ビルは神保町駅(A2番出口)の他に水道橋駅(東口)徒歩8分、九段下駅(6番出口)徒歩8分で利用も可能です。

