西神田YSビルのテナント募集中区画
| 階数 | 面積 | 賃料(共益費含む) | 保証金 | 入居可能日 | 検討リスト | 詳細 |
|---|---|---|---|---|---|---|
| 3 | 24.10坪 | 397,650円/月(16,500円/坪) | 187万円 | 即 |
…新着物件
アクセス
西神田YSビルの物件情報
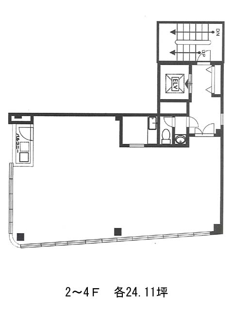
西神田YSビル(千代田区西神田)は九段下駅(7番出口)から徒歩5分の賃貸オフィスです。西神田エリアのビジネス街に建つオフィスビルです。グレーのタイル貼りで、エントランス部分は高級感がある仕上がりです。2006年に外装リニューアル済です。2015年には屋上も工事済で、管理がしっかりされている印象です。専有スペースはほぼ長方形に近い台形で、バルコニーがついています。室内にトイレと給湯室が設置されています。デスク等の配置も比較的簡単に考えやすいでしょう。西神田YSビルは九段下駅(7番出口)の他に神保町駅(A2番出口)徒歩5分、水道橋駅(西口)徒歩8分で利用も可能です。

