4階は現在募集がありません
西神田YSビル 4階
物件概要
西神田YSビルのテナント募集中区画
現在、空室がございません。
西神田YSビルのアクセス
西神田YSビルの物件情報
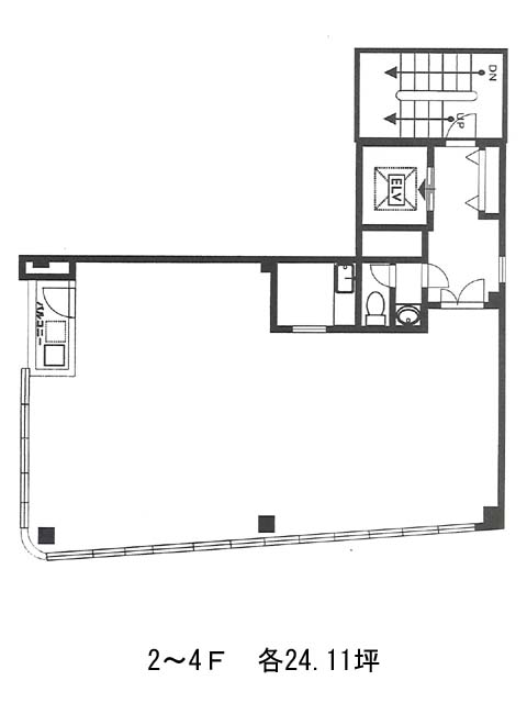
西神田YSビル(千代田区西神田)は九段下駅(7番出口)から徒歩5分の賃貸オフィスです。西神田エリアのビジネス街に建つオフィスビルです。グレーのタイル貼りで、エントランス部分は高級感がある仕上がりです。2006年に外装リニューアル済です。2015年には屋上も工事済で、管理がしっかりされている印象です。専有スペースはほぼ長方形に近い台形で、バルコニーがついています。室内にトイレと給湯室が設置されています。デスク等の配置も比較的簡単に考えやすいでしょう。西神田YSビルは九段下駅(7番出口)の他に神保町駅(A2番出口)徒歩5分、水道橋駅(西口)徒歩8分で利用も可能です。

