2階は現在募集がありません
UD日比谷ビル 2階
物件概要
UD日比谷ビルのテナント募集中区画
現在、空室がございません。
UD日比谷ビルのアクセス
UD日比谷ビルの物件情報
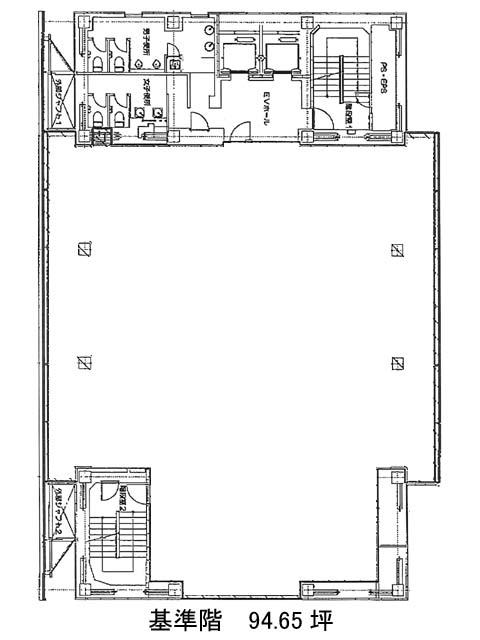
UD日比谷ビル(千代田区内幸町)は新橋駅(7番出口)から徒歩5分の賃貸オフィスです。新橋駅と有楽町駅の中間あたりの線路沿いに立地しているビルです。外観は光が差し込みやすいようにデザインされた前面のガラス張りが特徴的な視認性の高い物件です。1976年竣工ですが、2007年に全面的なリフォーム工事が行われていますので、とても綺麗です。建物の東側が線路のため、室内からの眺めは良さそうです。エントランスは白を基調とした明るい印象の空間です。間取りはほぼ長方形で床はフリーアクセスのためレイアウトはしやすいです。周囲に様々なブティックや飲食店などがあるため、ランチタイムはもちろん、仕事終わりのアフターも充実したものになるでしょう。UD日比谷ビルは新橋駅(7番出口)の他に銀座駅(C1番出口)徒歩6分、日比谷駅(A13番出口)徒歩6分で利用も可能です。

