7階は現在募集がありません
1フロア募集区画あり

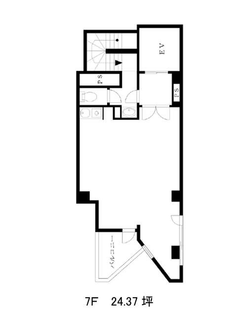
新都心ビル 7階

前の写真 次の写真

物件概要

物件番号

427-00094-60

物件名

新都心ビル

所在地

面積

24.37坪

賃料(共益費含)


入居日

募集終了

保証金

礼金

更新料

償却費

竣工

1991年9月

構造

RC

規模

地上9階/地下1階

トイレ

男女共用

空調

個別空調

エレベーター

セキュリティ

駐車場

耐震

新耐震基準

基準階天井高

2480mm

空室延床面積

24.35坪

最寄駅

情報更新日

2026/02/18

新都心ビルのテナント募集中区画

階数 面積 賃料(共益費含む) 保証金 入居可能日 検討リスト 詳細
4 24.35坪 468,737円/月(19,250円/坪) 102万円
…新着物件

新都心ビルのアクセス

新都心ビルの物件情報

新都心ビル(千代田区飯田橋)は飯田橋駅(A5番出口)から徒歩1分の賃貸オフィスです。
新都心ビルは飯田橋駅(A5番出口)の他に水道橋駅(西口)徒歩8分、九段下駅(7番出口)徒歩9分で利用も可能です。

近隣のエリア・駅から探す