5階 501は現在募集がありません
1フロア募集区画あり
ダイハツ有楽町ビル/有楽町M-SQUARE 5階 501
物件概要
物件番号
431-00025-50物件名
ダイハツ有楽町ビル/有楽町M-SQUARE所在地
- 東京都千代田区有楽町1-2-12
- アクセスマップ
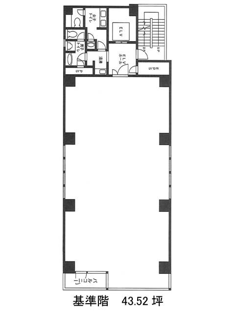
面積
43.52坪賃料(共益費含)
−入居日
募集終了保証金
−礼金
−更新料
−償却費
−竣工
1993年6月構造
SRC規模
地上8階/地下1階トイレ
男女別空調
個別空調エレベーター
有セキュリティ
有駐車場
無耐震
新耐震基準基準階天井高
2550mm空室延床面積
43.52坪情報更新日
2025/11/12ダイハツ有楽町ビル/有楽町M-SQUAREのテナント募集中区画
| 階数 | 面積 | 賃料(共益費含む) | 保証金 | 入居可能日 | 検討リスト | 詳細 |
|---|---|---|---|---|---|---|
| 7 | 43.52坪 | 応相談(応相談) | 応相談 | 即 |
…新着物件
アクセス
ダイハツ有楽町ビル/有楽町M-SQUAREの物件情報
ダイハツ有楽町ビル/有楽町M-SQUARE(千代田区有楽町)は日比谷駅(A1番出口)から徒歩3分の賃貸オフィスです。当ビルは、共用部の清潔感と貸室の使い勝手の良さが際立つ賃貸オフィス物件です。エレベーターホールには観葉植物が配され、ライトカラーを基調とした内装とともに、清潔感と温かみのある印象を与えます。貸室は長方形の無柱空間となっており、デスク配置や会議室の設置もスムーズ。レイアウトの自由度が高く、さまざまな働き方に対応できます。水回りが共用部にあるため、貸室を最大限に活用できる点もポイント。オートロックと機械警備を備えたセキュリティ体制で、安心して日々の業務に集中できます。また、複数の主要駅から徒歩圏内に位置し、周辺には飲食店やコンビニ、郵便局なども揃っており、働く環境としてのバランスも非常に良好です。ダイハツ有楽町ビル/有楽町M-SQUAREは日比谷駅(A1番出口)の他に銀座駅(C1番出口)徒歩3分、有楽町駅(日比谷口)徒歩5分で利用も可能です。

