3階は現在募集がありません
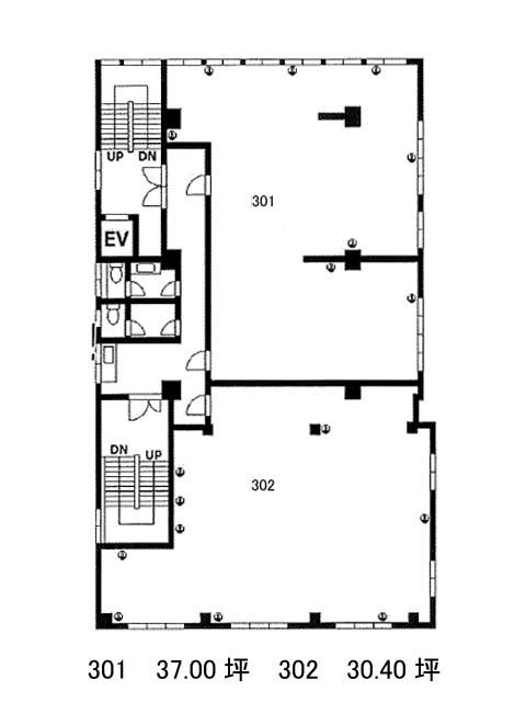
マルヤビル 3階
物件概要
マルヤビルのテナント募集中区画
現在、空室がございません。
マルヤビルのアクセス
マルヤビルの物件情報
マルヤビル(台東区東上野)は上野駅(1番出口)から徒歩2分の賃貸オフィスです。マルヤビルは上野駅(1番出口)の他に稲荷町駅(1番出口)徒歩5分、京成上野駅(正面口)徒歩8分で利用も可能です。

