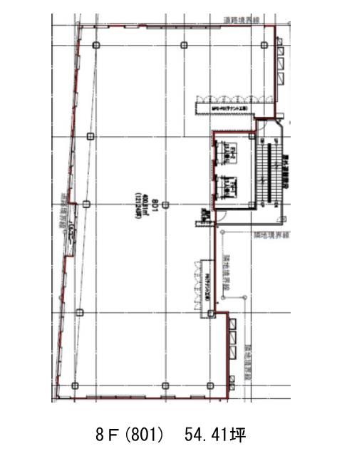
8階は現在募集がありません
FUNDES蒲田 8階
物件概要
FUNDES蒲田のテナント募集中区画
現在、空室がございません。
FUNDES蒲田のアクセス
FUNDES蒲田の物件情報
FUNDES蒲田(大田区蒲田)は蒲田駅(東口)から徒歩2分の賃貸オフィスです。FUNDES蒲田は蒲田駅(東口)の他に京急蒲田駅(東口)徒歩10分、蓮沼駅(出口1)徒歩13分で利用も可能です。

