2階は現在募集がありません
1フロア募集区画あり

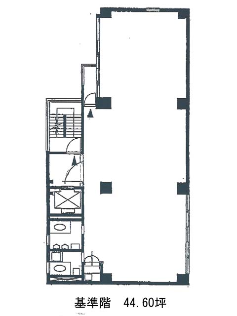
NAVALビル 2階

前の写真 次の写真

物件概要

物件番号

600-00029-20

物件名

NAVALビル

所在地

面積

44.60坪

賃料(共益費含)


入居日

募集終了

保証金

礼金

更新料

償却費

竣工

1986年1月

構造

RC

規模

地上8階

トイレ

男女別

空調

個別空調

エレベーター

セキュリティ

駐車場

耐震

新耐震基準

基準階天井高

空室延床面積

44.52坪

最寄駅

情報更新日

2025/09/05

NAVALビルのテナント募集中区画

階数 面積 賃料(共益費含む) 保証金 入居可能日 検討リスト 詳細
6 44.52坪 636,636円/月(14,300円/坪) 293万円
…新着物件

アクセス

NAVALビルの物件情報

NAVALビル(大田区大森北)は大森海岸駅(出口)から徒歩7分の賃貸オフィスです。
入新井中央通りに面し、ダークグレーのタイル外壁と縦長の外観が特徴的で視認性良好なビルです。近隣にはコンビニ、郵便局があるため非常に利便性が高く、入新井公園が近くにあるため仕事の合間に散策してリフレッシュするものよいでしょう。1986年竣工、地上8階の鉄筋コンクリート造で、主な設備としては個別空調、男女別トイレ、エレベーター1基が設置されております。基準階は約45坪、貸室内は長方形の形状で、貸室内に柱はありますが、端にあるためレイアウトに大きな支障はないでしょう。
NAVALビルは大森海岸駅(出口)の他に大森駅(東口)徒歩7分、平和島駅(出口)徒歩15分で利用も可能です。

近隣のエリア・駅から探す