7階は現在募集がありません
NAVALビル 7階
物件概要
NAVALビルのテナント募集中区画
現在、空室がございません。
NAVALビルのアクセス
NAVALビルの物件情報
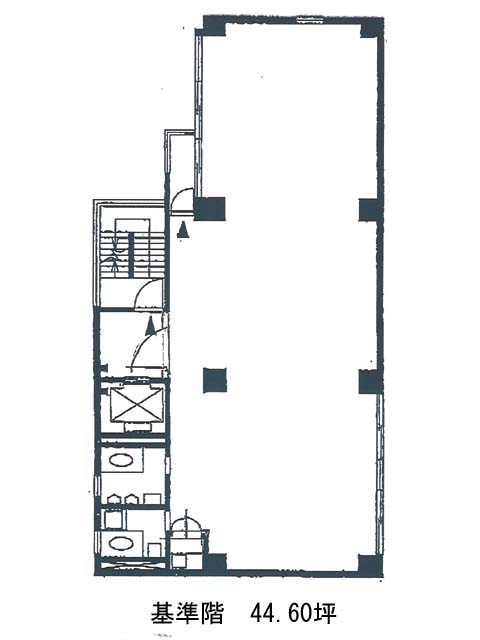
NAVALビル(大田区大森北)は大森海岸駅(出口)から徒歩7分の賃貸オフィスです。入新井中央通りに面し、ダークグレーのタイル外壁と縦長の外観が特徴的で視認性良好なビルです。近隣にはコンビニ、郵便局があるため非常に利便性が高く、入新井公園が近くにあるため仕事の合間に散策してリフレッシュするものよいでしょう。1986年竣工、地上8階の鉄筋コンクリート造で、主な設備としては個別空調、男女別トイレ、エレベーター1基が設置されております。基準階は約45坪、貸室内は長方形の形状で、貸室内に柱はありますが、端にあるためレイアウトに大きな支障はないでしょう。NAVALビルは大森海岸駅(出口)の他に大森駅(東口)徒歩7分、平和島駅(出口)徒歩15分で利用も可能です。

