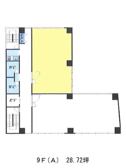
サンユー東蒲田ビルのテナント募集中区画
| 階数 | 面積 | 賃料(共益費含む) | 保証金 | 入居可能日 | 検討リスト | 詳細 |
|---|---|---|---|---|---|---|
| 5 | 79.47坪 | 650,001円/月(8,180円/坪) | 310万円 | 即 |
…新着物件
アクセス
サンユー東蒲田ビルの物件情報
サンユー東蒲田ビル(大田区東蒲田)は京急蒲田駅(東口)から徒歩3分の賃貸オフィスです。サンユー東蒲田ビルは京急蒲田駅(東口)の他に梅屋敷駅(出口2)徒歩10分、蒲田駅(東口)徒歩13分で利用も可能です。

