4階は現在募集がありません
3フロア募集区画あり

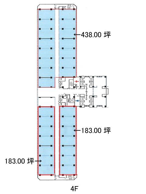
センタービル(TRC内) 4階

前の写真 次の写真

物件概要

物件番号

626-00014-7

物件名

センタービル(TRC内)

所在地

面積

183.00坪

賃料(共益費含)


入居日

募集終了

保証金

礼金

更新料

償却費

竣工

1971年10月

構造

SRC

規模

地上11階/地下2階

トイレ

不明

空調

セントラル

エレベーター

セキュリティ

駐車場

耐震

耐震補強済み

基準階天井高

2580mm

空室延床面積

326.00坪

最寄駅

情報更新日

2026/02/20

センタービル(TRC内)のテナント募集中区画

階数 面積 賃料(共益費含む) 保証金 入居可能日 検討リスト 詳細
26.00坪 応相談(応相談) 応相談 相談
100.00坪 応相談(応相談) 応相談 相談
200.00坪 応相談(応相談) 応相談 相談
…新着物件

センタービル(TRC内)のアクセス

センタービル(TRC内)の物件情報

センタービル(TRC内)(大田区平和島)は流通センター駅(出口)から徒歩1分の賃貸オフィスです。

近隣のエリア・駅から探す