4階は現在募集がありません
三栄ビル 4階
物件概要
三栄ビルのテナント募集中区画
現在、空室がございません。
三栄ビルのアクセス
三栄ビルの物件情報
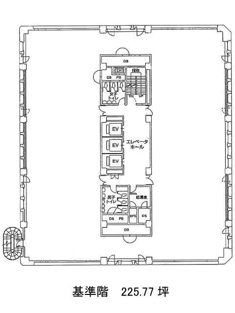
三栄ビル(中央区京橋)は京橋駅(7番出口)から徒歩2分の賃貸オフィスです。1972年竣工、地上9階建てのビルです。黒みがかったガラス窓に白い壁面がアクセントとなり、スタイリッシュな外観をしています。基準階面積は225.77坪。フロアの中央に共用部が集まり、使い勝手がよいでしょう。設備仕様として、EV・駐車場・個別空調・貸室外の男女別トイレ・総合受付があります。床はPCの配置がしやすいOAフロアを導入しています。2004年にリニューアルが実施されています。三栄ビルは京橋駅(7番出口)の他に宝町駅(A7番出口)徒歩5分、日本橋駅(B3番出口)徒歩5分で利用も可能です。

