仁大ビル 5階
物件概要
物件番号
633-00091-50物件名
仁大ビル所在地
- 東京都中央区京橋2-8-21
- アクセスマップ
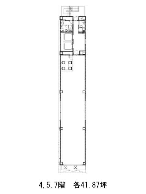
面積
41.87坪賃料(共益費含)
月額1,289,596円(30,800円/坪)
入居日
相談保証金
7,034,160円礼金
なし更新料
新1ケ月償却費
なし竣工
1988年9月構造
SRC規模
地上 9階/地下1階トイレ
男女別空調
個別空調エレベーター
有セキュリティ
有駐車場
無耐震
新耐震基準基準階天井高
2350(6F・7F)mm空室延床面積
167.64坪情報更新日
2025/11/19仁大ビルのテナント募集中区画
…新着物件
アクセス
仁大ビルの物件情報
仁大ビル(中央区京橋)は京橋駅(7番出口)から徒歩2分の賃貸オフィスです。複数路線の利用が可能なアクセス良好な立地といえるでしょう。外観はグレーを基調とした色で、細長いスマートな形をしているので、特徴的でとても視認性が高いです。1988年竣工、2021年にはリニューアル工事を実施し、新耐震基準を満たしたオフィスビルです。基準階面積は約40坪。個別空調完備、光ファイバー導入済み、男女別トイレ、エレベーター2基設置されております。またビルの近くにパーキングがあるため、社用車を使う場合に利用することが可能です。周辺には、コンビニや飲食店、銀行などが複数あるためとても利便性が高いです。仁大ビルは京橋駅(7番出口)の他に宝町駅(A7番出口)徒歩4分、日本橋駅(B3番出口)徒歩6分で利用も可能です。

