八重洲中央ビルのテナント募集中区画
| 階数 | 面積 | 賃料(共益費含む) | 保証金 | 入居可能日 | 検討リスト | 詳細 |
|---|---|---|---|---|---|---|
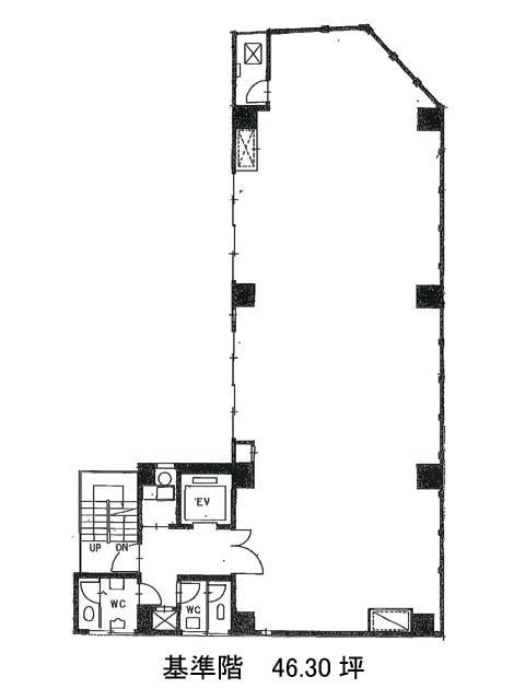
| 2 | 46.30坪 | 1,120,460円/月(24,200円/坪) | 1,000万円 | 即 |
…新着物件
アクセス
八重洲中央ビルの物件情報
八重洲中央ビル(中央区日本橋)は日本橋駅(B3番出口)から徒歩5分の賃貸オフィスです。八重洲通りに面していて角地に立地しているビルです。茶色の外壁の重厚感のある外観、1階にはコンビニが入店している視認性の高い物件です。室外に男女別のトイレ、給湯室があるので快適です。また、交差点角地にあるため、採光・眺望が期待できます。室内は余計な柱がありませんので効率よくレイアウトすることが可能です。周辺はコンビニ屋飲食店が多く利便性も良好でしょう。公営駐車場が目の前にありますので、車の置き場所にも困りません。八重洲中央ビルは日本橋駅(B3番出口)の他に宝町駅(A7番出口)徒歩5分、京橋駅(7番出口)徒歩6分で利用も可能です。

