2階は現在募集がありません
1フロア募集区画あり

日本橋セントラルスクエア 2階

前の写真 次の写真

物件概要

物件番号

643-00249-112

物件名

日本橋セントラルスクエア

所在地

面積

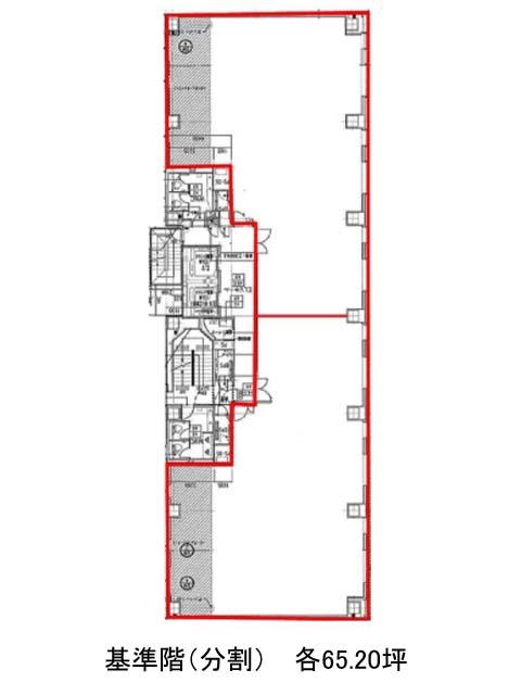
65.20坪

賃料(共益費含)


入居日

募集終了

保証金

礼金

更新料

償却費

竣工

2010年2月

構造

規模

地上8階

トイレ

男女別

空調

個別空調

エレベーター

セキュリティ

駐車場

耐震

新耐震基準

基準階天井高

2800mm

空室延床面積

65.20坪

最寄駅

情報更新日

2025/11/06

日本橋セントラルスクエアのテナント募集中区画

階数 面積 賃料(共益費含む) 保証金 入居可能日 検討リスト 詳細
3 65.20坪 応相談(応相談) 応相談 2026年4月上旬
…新着物件

アクセス

日本橋セントラルスクエアの物件情報

日本橋セントラルスクエア(中央区日本橋)は日本橋駅(D1番出口)から徒歩2分の賃貸オフィスです。
外観は、異なるサイズのガラスと壁面をモザイク状に組み合わせ瀟洒なデザインをしています。エントランスはやわらかな間接照明と植栽の演出により、温かみのある心癒される空間となっております。ビルが建つ江戸・もみじ通り沿いにも街路樹が豊富で、スタイリッシュなオフィスビルが並び落ち着いた雰囲気のエリアです。間取りはオフィス家具の配置がしやすい長方形をしております。EVホールから事務所への空間が広々として清潔感のある印象となります。
日本橋セントラルスクエアは日本橋駅(D1番出口)の他に茅場町駅(11番出口)徒歩4分、三越前駅(B6番出口)徒歩8分で利用も可能です。

近隣のエリア・駅から探す