日本橋セントラルスクエア 3階
物件概要
物件番号
643-00249-40物件名
日本橋セントラルスクエア所在地
- 東京都中央区日本橋2-16-11
- アクセスマップ
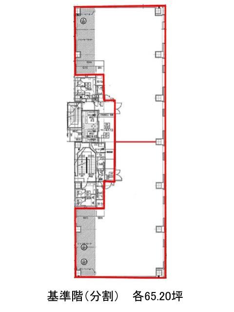
面積
65.20坪賃料(共益費含)
:応相談応相談
入居日
2026年4月上旬保証金
応相談礼金
なし更新料
なし償却費
なし竣工
2010年2月構造
規模
地上8階トイレ
男女別空調
個別空調エレベーター
有セキュリティ
駐車場
有耐震
新耐震基準基準階天井高
2800mm空室延床面積
65.20坪情報更新日
2025/11/06日本橋セントラルスクエアのテナント募集中区画
| 階数 | 面積 | 賃料(共益費含む) | 保証金 | 入居可能日 | 検討リスト | 詳細 |
|---|---|---|---|---|---|---|
| 3 | 65.20坪 | 応相談(応相談) | 応相談 | 2026年4月上旬 |
…新着物件
アクセス
日本橋セントラルスクエアの物件情報
日本橋セントラルスクエア(中央区日本橋)は日本橋駅(D1番出口)から徒歩2分の賃貸オフィスです。外観は、異なるサイズのガラスと壁面をモザイク状に組み合わせ瀟洒なデザインをしています。エントランスはやわらかな間接照明と植栽の演出により、温かみのある心癒される空間となっております。ビルが建つ江戸・もみじ通り沿いにも街路樹が豊富で、スタイリッシュなオフィスビルが並び落ち着いた雰囲気のエリアです。間取りはオフィス家具の配置がしやすい長方形をしております。EVホールから事務所への空間が広々として清潔感のある印象となります。日本橋セントラルスクエアは日本橋駅(D1番出口)の他に茅場町駅(11番出口)徒歩4分、三越前駅(B6番出口)徒歩8分で利用も可能です。

