5階は現在募集がありません
日本橋セントラルスクエア 5階
物件概要
日本橋セントラルスクエアのテナント募集中区画
現在、空室がございません。
日本橋セントラルスクエアのアクセス
日本橋セントラルスクエアの物件情報
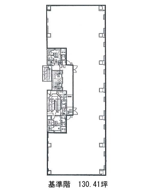
日本橋セントラルスクエア(中央区日本橋)は日本橋駅(D1番出口)から徒歩2分の賃貸オフィスです。外観は、異なるサイズのガラスと壁面をモザイク状に組み合わせ瀟洒なデザインをしています。エントランスはやわらかな間接照明と植栽の演出により、温かみのある心癒される空間となっております。ビルが建つ江戸・もみじ通り沿いにも街路樹が豊富で、スタイリッシュなオフィスビルが並び落ち着いた雰囲気のエリアです。間取りはオフィス家具の配置がしやすい長方形をしております。EVホールから事務所への空間が広々として清潔感のある印象となります。日本橋セントラルスクエアは日本橋駅(D1番出口)の他に茅場町駅(11番出口)徒歩4分、三越前駅(B6番出口)徒歩8分で利用も可能です。

