2階は現在募集がありません
1フロア募集区画あり

ACN日本橋小網町ビル 2階

前の写真 次の写真

物件概要

物件番号

651-00033-20

物件名

ACN日本橋小網町ビル

所在地

面積

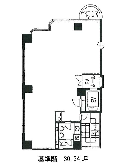
30.34坪

賃料(共益費含)


入居日

募集終了

保証金

礼金

更新料

償却費

竣工

1989年1月

構造

SRC

規模

地上9階

トイレ

男女共用

空調

個別空調

エレベーター

セキュリティ

駐車場

耐震

新耐震基準

基準階天井高

2550mm

空室延床面積

30.43坪

最寄駅

情報更新日

2026/01/13

ACN日本橋小網町ビルのテナント募集中区画

階数 面積 賃料(共益費含む) 保証金 入居可能日 検討リスト 詳細
5 30.43坪 応相談(応相談) 応相談
…新着物件

ACN日本橋小網町ビルのアクセス

ACN日本橋小網町ビルの物件情報

ACN日本橋小網町ビル(中央区日本橋小網町)は水天宮前駅(6番出口)から徒歩4分の賃貸オフィスです。
蛎殻町交差点近くに建つ、地上9階建てのビルです。橋を渡ると東京証券取引所という立地です。基準階は30.04坪の間取りです。柱が邪魔をしない配置なので、レイアウトしやすくなっています。室内に給湯設備とトイレが設置されています。隣に日本橋小網町郵便局があります。飲食店が充実しているエリアで、近くに「うなぎ喜代川」という、評判の良い老舗料理店があります。
ACN日本橋小網町ビルは水天宮前駅(6番出口)の他に茅場町駅(4A番出口)徒歩5分、人形町駅(A2番出口)徒歩5分で利用も可能です。

近隣のエリア・駅から探す