ACN日本橋小網町ビルのテナント募集中区画
| 階数 | 面積 | 賃料(共益費含む) | 保証金 | 入居可能日 | 検討リスト | 詳細 |
|---|---|---|---|---|---|---|
| 5 | 30.43坪 | 応相談(応相談) | 応相談 | 即 |
…新着物件
ACN日本橋小網町ビルのアクセス
ACN日本橋小網町ビルの物件情報
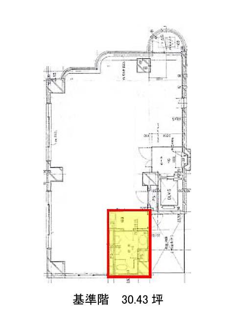
ACN日本橋小網町ビル(中央区日本橋小網町)は水天宮前駅(6番出口)から徒歩4分の賃貸オフィスです。蛎殻町交差点近くに建つ、地上9階建てのビルです。橋を渡ると東京証券取引所という立地です。基準階は30.04坪の間取りです。柱が邪魔をしない配置なので、レイアウトしやすくなっています。室内に給湯設備とトイレが設置されています。隣に日本橋小網町郵便局があります。飲食店が充実しているエリアで、近くに「うなぎ喜代川」という、評判の良い老舗料理店があります。ACN日本橋小網町ビルは水天宮前駅(6番出口)の他に茅場町駅(4A番出口)徒歩5分、人形町駅(A2番出口)徒歩5分で利用も可能です。

