4階 4Bは現在募集がありません
内山ビル 4階 4B
物件概要
内山ビルのテナント募集中区画
現在、空室がございません。
内山ビルのアクセス
内山ビルの物件情報
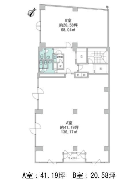
内山ビル(中央区日本橋人形町)は人形町駅(A6番出口)から徒歩2分の賃貸オフィスです。都営浅草線・日比谷線「人形町」駅から徒歩すぐの利便性に優れた物件。角地に位置し、自然光が取り込みやすく、視認性にも優れた立地です。
1フロア約60坪のフロアは、A室(約41坪)・B室(約20坪)と分割での賃貸が中心となっており、スタートアップから少人数チームの企業まで柔軟に対応可能。水回りは室外の共用部に集約されているため、室内レイアウトの自由度も高めです。周辺は人形町らしく、飲食店が充実したエリアで、ランチタイムや仕事終わりの外食にも困りません。ビジネスの拠点として、日常の快適さと働きやすさを兼ね備えた魅力的な物件です。内山ビルは人形町駅(A6番出口)の他に水天宮前駅(8番出口)徒歩5分、小伝馬町駅(3番出口)徒歩9分で利用も可能です。

