8階は現在募集がありません
1フロア募集区画あり

7山京ビル 8階

前の写真 次の写真

物件概要

物件番号

656-00025-70

物件名

7山京ビル

所在地

面積

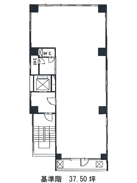
37.50坪

賃料(共益費含)


入居日

募集終了

保証金

礼金

更新料

償却費

竣工

1984年1月

構造

SRC

規模

地上9階

トイレ

男女別

空調

個別空調

エレベーター

セキュリティ

駐車場

耐震

新耐震基準

基準階天井高

空室延床面積

37.50坪

最寄駅

情報更新日

2025/11/06

7山京ビルのテナント募集中区画

階数 面積 賃料(共益費含む) 保証金 入居可能日 検討リスト 詳細
2 37.50坪 464,750円/月(12,393円/坪) 206万円
…新着物件

7山京ビルのアクセス

7山京ビルの物件情報

7山京ビル(中央区日本橋箱崎町)は水天宮前駅(2番出口)から徒歩3分の賃貸オフィスです。
日本橋川の近くに建つ、9階建てのビルです。白いパネルを使った、清潔感のある外観です。基準階は37.5坪のL字型の無柱空間で、レイアウトしやすい間取りになっています。室内に給湯室と男女別トイレが設置されています。近隣に日本橋川、隅田川、箱崎公園があり、憩いの場に恵まれた環境です。通りを挟んで向かいのブロックには、東京芸術劇場が運営する水天宮ピットがあります。
7山京ビルは水天宮前駅(2番出口)の他に茅場町駅(4B番出口)徒歩7分、人形町駅(A2番出口)徒歩9分で利用も可能です。

近隣のエリア・駅から探す