日本橋SSビルのテナント募集中区画
| 階数 | 面積 | 賃料(共益費含む) | 保証金 | 入居可能日 | 検討リスト | 詳細 |
|---|---|---|---|---|---|---|
| 1 | 23.40坪 | 437,500円/月(18,696円/坪) | 238万円 | 相談 |
…新着物件
日本橋SSビルのアクセス
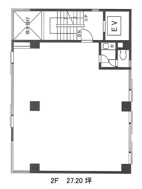
日本橋SSビルの物件情報
日本橋SSビル(中央区日本橋本石町)は新日本橋駅(2番出口)から徒歩3分の賃貸オフィスです。日本橋SSビルは新日本橋駅(2番出口)の他に神田駅(南口)徒歩4分、三越前駅(A8番出口)徒歩5分で利用も可能です。

