4階は現在募集がありません
社会保険労務士会館 4階
物件概要
社会保険労務士会館のテナント募集中区画
現在、空室がございません。
社会保険労務士会館のアクセス
社会保険労務士会館の物件情報
社会保険労務士会館(中央区日本橋本石町)は新日本橋駅(2番出口)から徒歩3分の賃貸オフィスです。本物件は、中央区日本橋本石町、まさに“日本の金融中枢”と呼べるロケーションに位置します。ビルの目の前には日本銀行本店が構え、士業や金融・会計関連など信頼性が重視される企業にとっては、これ以上ないブランドロケーションと言えるでしょう。
外観は、青みがかったガラスカーテンウォールとタイル張りが組み合わされた落ち着きある佇まい。
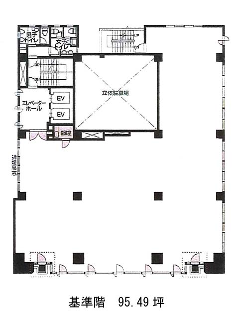
整形な貸室は約95坪で、室内に柱はありますが、ゾーニングに工夫を凝らすことでむしろレイアウトの自由度が高まります。エレベーター2基、OAフロア、機械警備、立体駐車場完備と、設備面も安心。
公共機関とのやりとりが多い業種や、堅実な企業イメージを演出したい企業におすすめの一棟です。社会保険労務士会館は新日本橋駅(2番出口)の他に三越前駅(A8番出口)徒歩4分、神田駅(南口)徒歩6分で利用も可能です。

