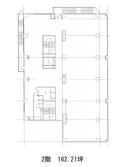
シティハイツ大井町 2階
物件概要
シティハイツ大井町のテナント募集中区画
| 階数 | 面積 | 賃料(共益費含む) | 保証金 | 入居可能日 | 検討リスト | 詳細 |
|---|---|---|---|---|---|---|
| 2 | 162.21坪 | 2,420,000円/月(14,920円/坪) | 1,680万円 | 即 |
…新着物件
アクセス
シティハイツ大井町の物件情報
シティハイツ大井町(品川区大井)は大井町駅(A2番出口)から徒歩4分の賃貸オフィスです。シティハイツ大井町は大井町駅(A2番出口)の他に下神明駅(出口)徒歩10分で利用も可能です。

