1階は現在募集がありません
1フロア募集区画あり

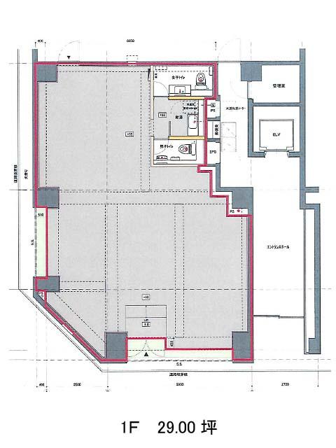
大森YSビル 1階

前の写真 次の写真

物件概要

物件番号

766-00017-21

物件名

大森YSビル

所在地

面積

29.00坪

賃料(共益費含)


入居日

募集終了

保証金

礼金

更新料

償却費

竣工

1992年6月

構造

RC

規模

地上7階

トイレ

男女別

空調

個別空調

エレベーター

セキュリティ

駐車場

耐震

新耐震基準

基準階天井高

空室延床面積

48.93坪

最寄駅

情報更新日

2026/03/03

大森YSビルのテナント募集中区画

階数 面積 賃料(共益費含む) 保証金 入居可能日 検討リスト 詳細
5 48.93坪 応相談(応相談) 応相談
…新着物件

大森YSビルのアクセス

大森YSビルの物件情報

大森YSビル(品川区南大井)は大森海岸駅(出口)から徒歩5分の賃貸オフィスです。
大森YSビルは大森海岸駅(出口)の他に大森駅(北口2)徒歩7分で利用も可能です。

近隣のエリア・駅から探す