3階は現在募集がありません
ミヤデラビル 3階
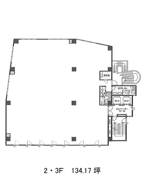
物件概要
ミヤデラビルのテナント募集中区画
現在、空室がございません。
アクセス
ミヤデラビルの物件情報
ミヤデラビル(品川区南品川)は青物横丁駅(出口3)から徒歩4分の賃貸オフィスです。ミヤデラビルは青物横丁駅(出口3)の他に新馬場駅(南口)徒歩6分、鮫洲駅(出口)徒歩11分で利用も可能です。

