2階は現在募集がありません
1フロア募集区画あり

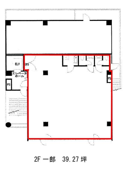
後楽1丁目ビル 2階

前の写真 次の写真

物件概要

物件番号

775-00021-20

物件名

後楽1丁目ビル

所在地

面積

39.27坪

賃料(共益費含)


入居日

募集終了

保証金

礼金

更新料

償却費

竣工

1988年4月

構造

S造

規模

地上9階

トイレ

男女別

空調

個別空調

エレベーター

セキュリティ

駐車場

耐震

新耐震基準

基準階天井高

空室延床面積

39.32坪

最寄駅

情報更新日

2026/02/04

後楽1丁目ビルのテナント募集中区画

階数 面積 賃料(共益費含む) 保証金 入居可能日 検討リスト 詳細
1 39.32坪 951,544円/月(24,200円/坪) 692万円
…新着物件

後楽1丁目ビルのアクセス

後楽1丁目ビルの物件情報

後楽1丁目ビル(文京区後楽)は水道橋駅(西口)から徒歩2分の賃貸オフィスです。
1988年竣工。茶色のブロックタイルとパネル張りの組み合わせが印象的な外観の地上9階建ての建物です。エントランスホールも茶色をベースとしたスタイリッシュな空間に仕上がっております。エレベーターは1基設置。基準階面積は約57坪。貸室内は個別空調、男女別トイレ設置。ビルは24時間利用可能で、機械式警備を導入しています。また新耐震基準を満たしているので、安心してご入居いただけます。外堀通りに面しており、視認性は高く、周辺は飲食店も充実しているので、ランチやディナーに困ることはないと思います。
後楽1丁目ビルは水道橋駅(西口)の他に飯田橋駅(C2番出口)徒歩6分、後楽園駅(3番出口)徒歩9分で利用も可能です。

近隣のエリア・駅から探す