後楽1丁目ビルのテナント募集中区画
| 階数 | 面積 | 賃料(共益費含む) | 保証金 | 入居可能日 | 検討リスト | 詳細 |
|---|---|---|---|---|---|---|
| 1 | 39.32坪 | 951,544円/月(24,200円/坪) | 692万円 | 即 |
…新着物件
後楽1丁目ビルのアクセス
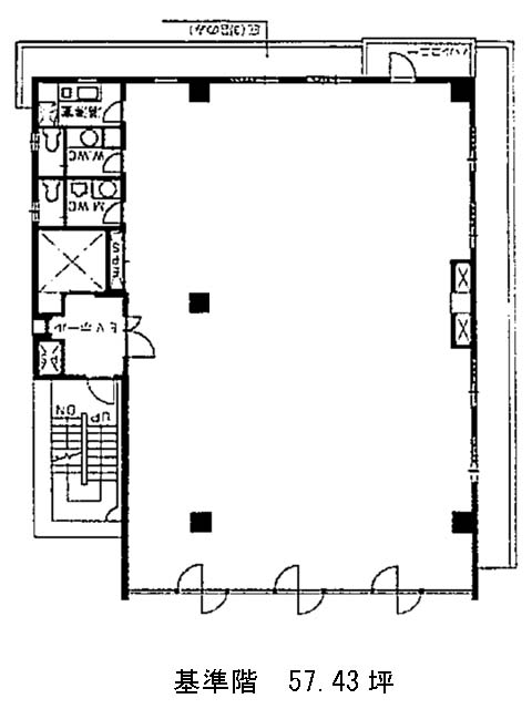
後楽1丁目ビルの物件情報
後楽1丁目ビル(文京区後楽)は水道橋駅(西口)から徒歩2分の賃貸オフィスです。1988年竣工。茶色のブロックタイルとパネル張りの組み合わせが印象的な外観の地上9階建ての建物です。エントランスホールも茶色をベースとしたスタイリッシュな空間に仕上がっております。エレベーターは1基設置。基準階面積は約57坪。貸室内は個別空調、男女別トイレ設置。ビルは24時間利用可能で、機械式警備を導入しています。また新耐震基準を満たしているので、安心してご入居いただけます。外堀通りに面しており、視認性は高く、周辺は飲食店も充実しているので、ランチやディナーに困ることはないと思います。後楽1丁目ビルは水道橋駅(西口)の他に飯田橋駅(C2番出口)徒歩6分、後楽園駅(3番出口)徒歩9分で利用も可能です。

