9階は現在募集がありません
KOYOSHA KSビル 9階
物件概要
KOYOSHA KSビルのテナント募集中区画
現在、空室がございません。
アクセス
KOYOSHA KSビルの物件情報
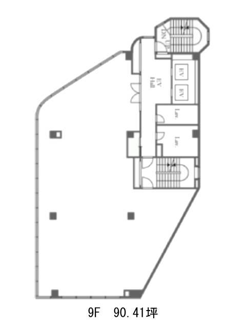
KOYOSHA KSビル(文京区西片)は春日駅(A6番出口)から徒歩4分の賃貸オフィスです。1992年竣工、新耐震基準を満たした地上9階、地下1階建てのオフィスビルです。グレーを基調としたパネル張りのシンプルな外観の作りになっており、エントランス内にはエレベーターが2基設置されております。基準階面積は約260坪と広く、貸室内は特徴的な形をしておりますが、来客スペースと執務スペースが分けやすい形状になっています。その他、個別空調、OAフロア、男女別トイレと、機械式の立体駐車場が完備されており、白山通り沿いに立地していることから、車の利用がしやすい環境にあるでしょう。また当ビルは「樋口一葉終焉の地」としてビルの壁の植込に記念碑が建っております。KOYOSHA KSビルは春日駅(A6番出口)の他に後楽園駅(8番出口)徒歩8分、白山駅(A1番出口)徒歩11分で利用も可能です。

