8階は現在募集がありません

KOYOSHA KSビル 8階

前の写真 次の写真

物件概要

物件番号

782-00012-80

物件名

KOYOSHA KSビル

所在地

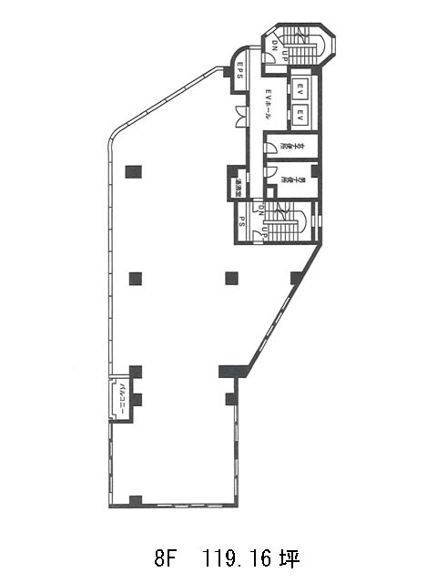
面積

119.16坪

賃料(共益費含)


入居日

募集終了

保証金

礼金

更新料

償却費

竣工

1992年1月

構造

SRC

規模

地上9階/地下1階

トイレ

男女別

空調

個別空調

エレベーター

セキュリティ

駐車場

耐震

新耐震基準

基準階天井高

2500mm

空室延床面積

最寄駅

情報更新日

2024/06/28

KOYOSHA KSビルのテナント募集中区画

現在、空室がございません。

KOYOSHA KSビルのアクセス

KOYOSHA KSビルの物件情報

KOYOSHA KSビル(文京区西片)は春日駅(A6番出口)から徒歩4分の賃貸オフィスです。
1992年竣工、新耐震基準を満たした地上9階、地下1階建てのオフィスビルです。グレーを基調としたパネル張りのシンプルな外観の作りになっており、エントランス内にはエレベーターが2基設置されております。基準階面積は約260坪と広く、貸室内は特徴的な形をしておりますが、来客スペースと執務スペースが分けやすい形状になっています。その他、個別空調、OAフロア、男女別トイレと、機械式の立体駐車場が完備されており、白山通り沿いに立地していることから、車の利用がしやすい環境にあるでしょう。また当ビルは「樋口一葉終焉の地」としてビルの壁の植込に記念碑が建っております。
KOYOSHA KSビルは春日駅(A6番出口)の他に後楽園駅(8番出口)徒歩8分、白山駅(A1番出口)徒歩11分で利用も可能です。

近隣のエリア・駅から探す