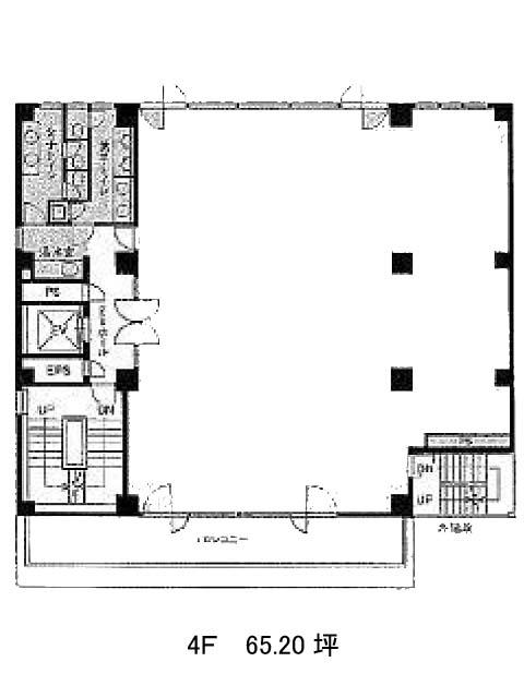
4階は現在募集がありません
湯島太田ビル 4階
物件概要
湯島太田ビルのテナント募集中区画
現在、空室がございません。
湯島太田ビルのアクセス
湯島太田ビルの物件情報
湯島太田ビル(文京区湯島)は本郷三丁目駅(5番出口)から徒歩6分の賃貸オフィスです。1991年竣工、鉄骨鉄筋コンクリート造の地上7階建てのビルです。サッカー通りから少し入った場所に位置し、オフィスビルや住宅が混在するエリアで、少し歩くと飲食店やコンビニが複数あります。落ち着いた色合いのタイル張りの外観です。白を基調とした大理石調のホールは高級感もあり来客時にも好印象でしょう。基準階は約80坪、階に寄って間取りやサイズが異なるため、ご相談ください。設備はエレベーターが1基、個別空調、トイレは男女別です。湯島太田ビルは本郷三丁目駅(5番出口)の他に湯島駅(5番出口)徒歩8分、御茶ノ水駅(1番出口)徒歩11分で利用も可能です。

