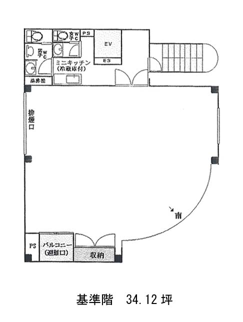
美工本郷ビルのテナント募集中区画
| 階数 | 面積 | 賃料(共益費含む) | 保証金 | 入居可能日 | 検討リスト | 詳細 |
|---|---|---|---|---|---|---|
| 3 | 34.12坪 | 581,743円/月(17,050円/坪) | 426万円 | 2025年12月中旬 |
…新着物件
アクセス
美工本郷ビルの物件情報
美工本郷ビル(文京区本郷)は本郷三丁目駅(5番出口)から徒歩5分の賃貸オフィスです。美工本郷ビルは本郷三丁目駅(5番出口)の他に御茶ノ水駅(1番出口)徒歩8分、水道橋駅(A1番出口)徒歩10分で利用も可能です。

