4階は現在募集がありません
美工本郷ビル 4階
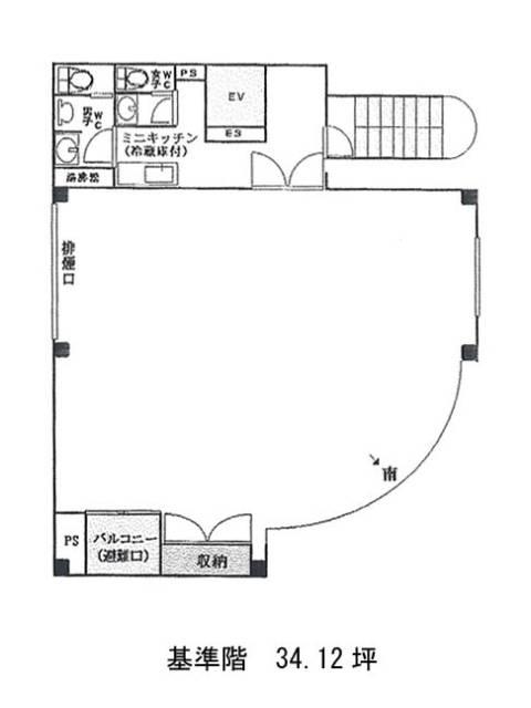
物件概要
美工本郷ビルのテナント募集中区画
現在、空室がございません。
美工本郷ビルのアクセス
美工本郷ビルの物件情報
美工本郷ビル(文京区本郷)は本郷三丁目駅(5番出口)から徒歩5分の賃貸オフィスです。美工本郷ビルは本郷三丁目駅(5番出口)の他に御茶ノ水駅(1番出口)徒歩8分、水道橋駅(A1番出口)徒歩10分で利用も可能です。

