美工本郷ビル 3階
物件概要
物件番号
788-00197-81物件名
美工本郷ビル所在地
- 東京都文京区本郷3-15-1
- アクセスマップ
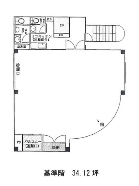
面積
34.12坪賃料(共益費含)
月額581,743円(17,050円/坪)
入居日
2025年12月中旬保証金
4,265,000円礼金
なし更新料
新1ケ月償却費
2ケ月竣工
1989年4月構造
SRC規模
地上9階トイレ
男女別空調
個別空調エレベーター
有セキュリティ
有駐車場
無耐震
新耐震基準基準階天井高
空室延床面積
34.12坪情報更新日
2025/11/20美工本郷ビルのテナント募集中区画
| 階数 | 面積 | 賃料(共益費含む) | 保証金 | 入居可能日 | 検討リスト | 詳細 |
|---|---|---|---|---|---|---|
| 3 | 34.12坪 | 581,743円/月(17,050円/坪) | 426万円 | 2025年12月中旬 |
…新着物件
アクセス
美工本郷ビルの物件情報
美工本郷ビル(文京区本郷)は本郷三丁目駅(5番出口)から徒歩5分の賃貸オフィスです。美工本郷ビルは本郷三丁目駅(5番出口)の他に御茶ノ水駅(1番出口)徒歩8分、水道橋駅(A1番出口)徒歩10分で利用も可能です。

