つなかわビル 3階
物件概要
つなかわビルのテナント募集中区画
| 階数 | 面積 | 賃料(共益費含む) | 保証金 | 入居可能日 | 検討リスト | 詳細 |
|---|---|---|---|---|---|---|
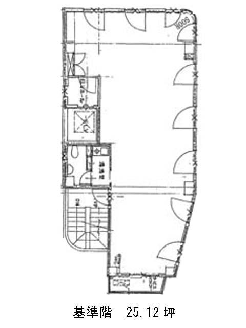
| 3 | 25.12坪 | 応相談(応相談) | 応相談 | 即 |
…新着物件
アクセス
つなかわビルの物件情報
つなかわビル(港区元麻布)は六本木駅(出口)から徒歩7分の賃貸オフィスです。つなかわビルは六本木駅(出口)の他に麻布十番駅(7番出口)徒歩13分、広尾駅(3番出口)徒歩13分で利用も可能です。

