巴町アネックス 2号館 3階
物件概要
物件番号
122-00109-101物件名
巴町アネックス 2号館所在地
- 東京都港区虎ノ門3-8-27
- アクセスマップ
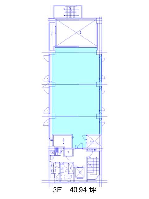
面積
40.94坪賃料(共益費含)
:応相談応相談
入居日
2026年4月上旬保証金
応相談礼金
なし更新料
なし償却費
なし竣工
1988年3月構造
規模
地上9階トイレ
男女別空調
個別空調エレベーター
有セキュリティ
駐車場
無耐震
新耐震基準基準階天井高
2500mm空室延床面積
40.94坪情報更新日
2026/01/09巴町アネックス 2号館のテナント募集中区画
| 階数 | 面積 | 賃料(共益費含む) | 保証金 | 入居可能日 | 検討リスト | 詳細 |
|---|---|---|---|---|---|---|
| 3 | 40.94坪 | 応相談(応相談) | 応相談 | 2026年4月上旬 |
…新着物件
アクセス
巴町アネックス 2号館の物件情報
巴町アネックス 2号館(港区虎ノ門)は虎ノ門ヒルズ駅(A1番出口)から徒歩1分の賃貸オフィスです。巴町アネックス 2号館は虎ノ門ヒルズ駅(A1番出口)の他に虎ノ門駅(2a番出口)徒歩6分、神谷町駅(3番出口)徒歩6分で利用も可能です。

