芝公園プラザビルのテナント募集中区画
| 階数 | 面積 | 賃料(共益費含む) | 保証金 | 入居可能日 | 検討リスト | 詳細 |
|---|---|---|---|---|---|---|
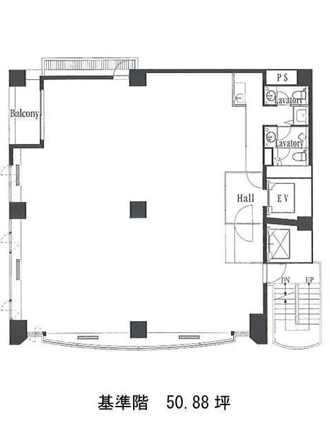
| 4 | 50.88坪 | 1,007,424円/月(19,800円/坪) | 732万円 | 相談 |
…新着物件
アクセス
芝公園プラザビルの物件情報
芝公園プラザビル(港区芝)は芝公園駅(A1番出口)から徒歩1分の賃貸オフィスです。日比谷通り沿いに建つこちらのビルは、石造りの上品なエントランスが目を引く佇まい。落ち着いた雰囲気の外観と曲線を描く窓面が、ビジネスの場としての信頼感をしっかり演出しています。
基準階は約50坪。コンパクトながら、エレベーターホールと貸室がしっかり分かれており、来客対応にも安心の造りです。トイレや給湯室は共用部にあるため、執務スペースは気兼ねなく使える点も嬉しいポイント。レイアウトに少し工夫が必要な柱位置ではありますが、OAフロアを活かせば配線はすっきりまとめられます。
さらに、機械警備によるセキュリティと、敷地内に駐車場がある点もビジネスには心強い条件。移転後すぐに快適な働き方ができそうな、バランスの取れた一棟です。芝公園プラザビルは芝公園駅(A1番出口)の他に三田駅(A10番出口)徒歩5分、赤羽橋駅(赤羽橋口)徒歩9分で利用も可能です。

