3階 301は現在募集がありません
1フロア募集区画あり
ICON PLACE SHIBAKOEN 3階 301
物件概要
物件番号
126-00162-30物件名
ICON PLACE SHIBAKOEN所在地
- 東京都港区芝3-2-18
- アクセスマップ
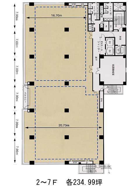
面積
234.99坪賃料(共益費含)
−入居日
募集終了保証金
−礼金
−更新料
−償却費
−竣工
1990年8月構造
SRC規模
地上12階/地下2階トイレ
男女別空調
個別空調エレベーター
有セキュリティ
有駐車場
有耐震
新耐震基準基準階天井高
2600mm空室延床面積
123.41坪情報更新日
2026/02/18ICON PLACE SHIBAKOENのテナント募集中区画
| 階数 | 面積 | 賃料(共益費含む) | 保証金 | 入居可能日 | 検討リスト | 詳細 |
|---|---|---|---|---|---|---|
| 7 | 123.41坪 | 応相談(応相談) | 応相談 | 即 |
…新着物件
ICON PLACE SHIBAKOENのアクセス
ICON PLACE SHIBAKOENの物件情報
ICON PLACE SHIBAKOEN(港区芝)は赤羽橋駅(赤羽橋口)から徒歩4分の賃貸オフィスです。1990年竣工のビルです。地上12階建ての物件ということもあり、上層階からの眺望は良好です。外観は全体的に明るい色合いで、ライン状に並んだガラスウォールが美しい建物です。エントランスホールやエレベーターホールは清潔感があり、落ち着いた空間となっております。ビル内にはOAフロアが備えられており、トイレは男女別となっております。また周辺には、コンビニや飲食店、郵便局などがあるため、利便性が高いです。ICON PLACE SHIBAKOENは赤羽橋駅(赤羽橋口)の他に芝公園駅(A2番出口)徒歩5分、三田駅(A10番出口)徒歩10分で利用も可能です。

