8階は現在募集がありません
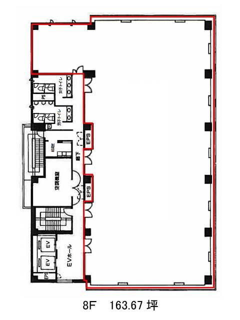
芝SIAビル 8階
物件概要
芝SIAビルのテナント募集中区画
現在、空室がございません。
芝SIAビルのアクセス
芝SIAビルの物件情報
芝SIAビル(港区芝)は大門駅(A1番出口)から徒歩8分の賃貸オフィスです。外観は全体的にシックな色合いで、窓がライン状に並んでいるため統一感が感じられる視認性の高い建物です。エントランスホールやエレベーターホールは清潔感があり、落ち着いた空間となっております。室内は、基準階が約150坪あり、長方形の整形オフィスのため、効率の良いレイアウトが組めそうです。募集時期よっては、分割フロアの場合もあります。トイレは男女別となってりおます。また周辺には、コンビニや飲食店、郵便局などがあるため、利便性が高いです。芝SIAビルは大門駅(A1番出口)の他に芝公園駅(A1番出口)徒歩9分、浜松町駅(南口1)徒歩9分で利用も可能です。

