ARZ芝公園 1階
物件概要
物件番号
126-00205-10物件名
ARZ芝公園所在地
- 東京都港区芝2-23-1
- アクセスマップ
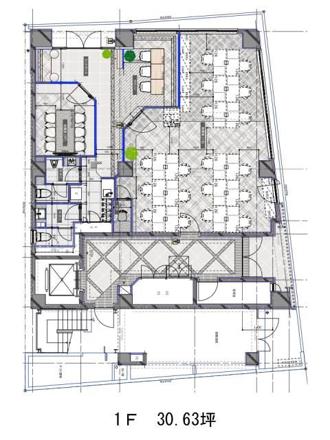
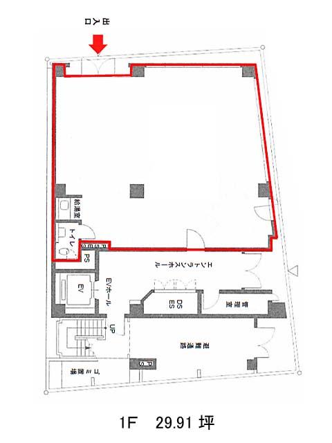
面積
30.63坪賃料(共益費含)
月額873,626円(28,521円/坪)
入居日
即保証金
6,353,642円礼金
なし更新料
新1ケ月償却費
なし竣工
1987年9月構造
RC規模
地上5階/地下1階トイレ
男女別空調
個別空調エレベーター
有セキュリティ
有駐車場
無耐震
新耐震基準基準階天井高
2540mm空室延床面積
122.39坪情報更新日
2025/09/02ARZ芝公園のテナント募集中区画
| 階数 | 面積 | 賃料(共益費含む) | 保証金 | 入居可能日 | 検討リスト | 詳細 |
|---|---|---|---|---|---|---|
| 1 | 30.63坪 | 873,626円/月(28,521円/坪) | 635万円 | 即 | ||
| 2 | 45.88坪 | 1,362,636円/月(29,700円/坪) | 991万円 | 即 | ||
| 3 | 45.88坪 | 1,362,636円/月(29,700円/坪) | 991万円 | 即 |
…新着物件
アクセス
ARZ芝公園の物件情報
ARZ芝公園(港区芝)は芝公園駅(A1番出口)から徒歩5分の賃貸オフィスです。ARZ芝公園は芝公園駅(A1番出口)の他に三田駅(A9番出口)徒歩6分、田町駅(三田口)徒歩11分で利用も可能です。

