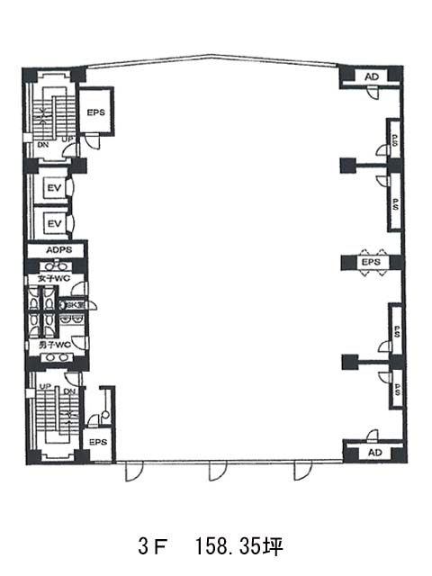
3階は現在募集がありません
ハンファビル 3階
物件概要
ハンファビルのテナント募集中区画
現在、空室がございません。
ハンファビルのアクセス
ハンファビルの物件情報
ハンファビル(港区芝)は三田駅(A9番出口)から徒歩4分の賃貸オフィスです。前面道路側にミラーガラスが輝く地上9階地下1階建のビルです。1991年竣工で新耐震基準を満たしています。吹抜けの広々としたエントランスで、来客をゆったりとお迎えできるでしょう。設備として、EV・駐車場・個別空調・OAフロア・非常階段2箇所・給湯室・執務室外の男女別トイレがあり、機械警備を導入しています。天井高2840mmで開放感のある室内となるでしょう。周辺はオフィスビル・分譲マンション・ホテルが建ち、コンビニやミニスーパー等徒歩圏内に点在します。ハンファビルは三田駅(A9番出口)の他に田町駅(三田口)徒歩7分、芝公園駅(A1番出口)徒歩8分で利用も可能です。

