1階は現在募集がありません
1フロア募集区画あり

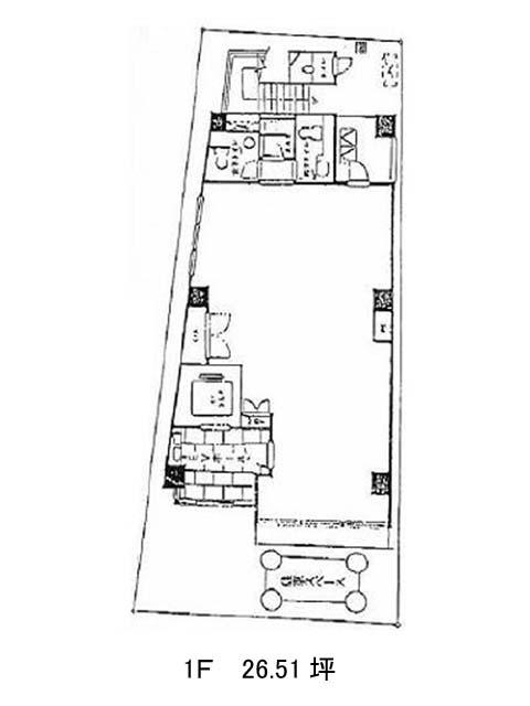
マツラビル 1階

前の写真 次の写真

物件概要

物件番号

126-00484-10

物件名

マツラビル

所在地

面積

26.51坪

賃料(共益費含)


入居日

募集終了

保証金

礼金

更新料

償却費

竣工

1991年1月

構造

SRC

規模

地上7階

トイレ

男女別

空調

個別空調

エレベーター

セキュリティ

駐車場

耐震

新耐震基準

基準階天井高

空室延床面積

30.65坪

最寄駅

情報更新日

2025/11/25

マツラビルのテナント募集中区画

階数 面積 賃料(共益費含む) 保証金 入居可能日 検討リスト 詳細
5 30.65坪 505,725円/月(16,500円/坪) 367万円 2026年4月上旬
…新着物件

マツラビルのアクセス

マツラビルの物件情報

マツラビル(港区芝)は日の出駅(東口)から徒歩8分の賃貸オフィスです。
マツラビルは日の出駅(東口)の他に芝公園駅(A1番出口)徒歩9分、浜松町駅(南口1)徒歩9分で利用も可能です。

近隣のエリア・駅から探す