2階は現在募集がありません
芝NKビル 2階
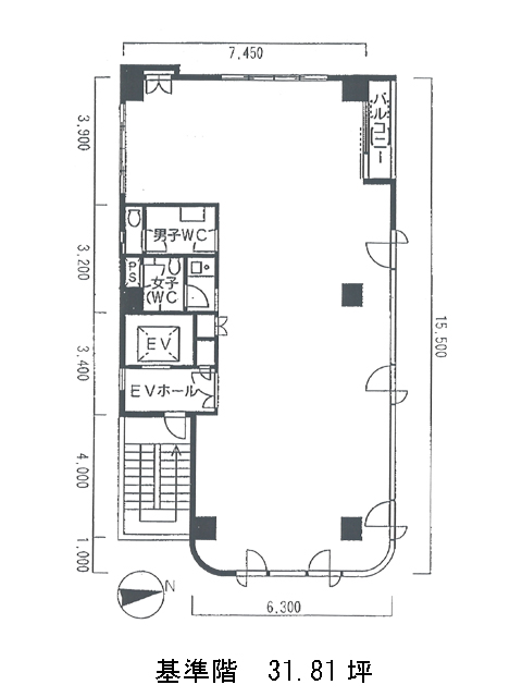
物件概要
芝NKビルのテナント募集中区画
現在、空室がございません。
アクセス
芝NKビルの物件情報
芝NKビル(港区芝)は芝公園駅(A1番出口)から徒歩1分の賃貸オフィスです。芝NKビルは芝公園駅(A1番出口)の他に三田駅(A10番出口)徒歩5分、赤羽橋駅(赤羽橋口)徒歩9分で利用も可能です。

