芝NKビルのテナント募集中区画
| 階数 | 面積 | 賃料(共益費含む) | 保証金 | 入居可能日 | 検討リスト | 詳細 |
|---|---|---|---|---|---|---|
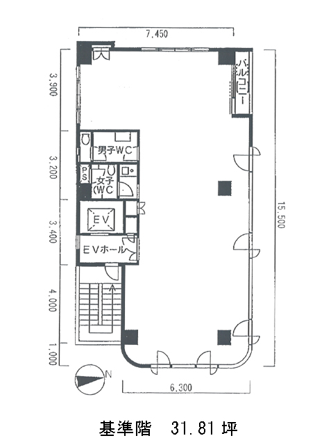
| 5 | 31.81坪 | 390,535円/月(12,277円/坪) | 192万円 | 即 |
…新着物件
アクセス
芝NKビルの物件情報
芝NKビル(港区芝)は芝公園駅(A1番出口)から徒歩1分の賃貸オフィスです。芝NKビルは芝公園駅(A1番出口)の他に三田駅(A10番出口)徒歩5分、赤羽橋駅(赤羽橋口)徒歩9分で利用も可能です。

