セルツェ芝浦のテナント募集中区画
| 階数 | 面積 | 賃料(共益費含む) | 保証金 | 入居可能日 | 検討リスト | 詳細 |
|---|---|---|---|---|---|---|
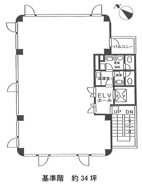
| 5 | 20.96坪 | 286,000円/月(13,646円/坪) | 138万円 | 2026年1月中旬 |
…新着物件
アクセス
セルツェ芝浦の物件情報
セルツェ芝浦(港区芝浦)は日の出駅(東口)から徒歩7分の賃貸オフィスです。セルツェ芝浦は日の出駅(東口)の他に三田駅(A9番出口)徒歩8分、芝公園駅(A1番出口)徒歩10分で利用も可能です。

