3階は現在募集がありません
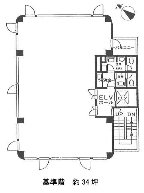
セルツェ芝浦 3階
物件概要
セルツェ芝浦のテナント募集中区画
現在、空室がございません。
セルツェ芝浦のアクセス
セルツェ芝浦の物件情報
セルツェ芝浦(港区芝浦)は日の出駅(東口)から徒歩7分の賃貸オフィスです。セルツェ芝浦は日の出駅(東口)の他に三田駅(A9番出口)徒歩8分、芝公園駅(A1番出口)徒歩10分で利用も可能です。

